안녕하세요.
아래의 제품 문의가 많아서 한번 더 글을 작성합니다.
많은 분들이 서버에 기본 모니터가 있다보니, 7인치 모니터를 제외하고 견적 문의가 많습니다.
7인치 터치 모니터 세트 제외하고도 제작 가능합니다.
7인치 터치모니터 자리에 로고나 원하시는 디자인 레이저마킹도 가능합니다. (ai파일)
CPU는 12,13세대를 주로 사용하며, 그래픽카드 장착 가능합니다.
이 외에 원하시는 스타일로 서버 설계하여 제작 가능합니다.
LAN 5개 서버용 보드도 있으니, 아래 카카오톡플러스 채널로 문의주시면 감사하겠습니다.
AI , ChatGPT , IoT , 스마트팩토리 등 여러 산업분야에서 사용가능한 서버랙입니다.
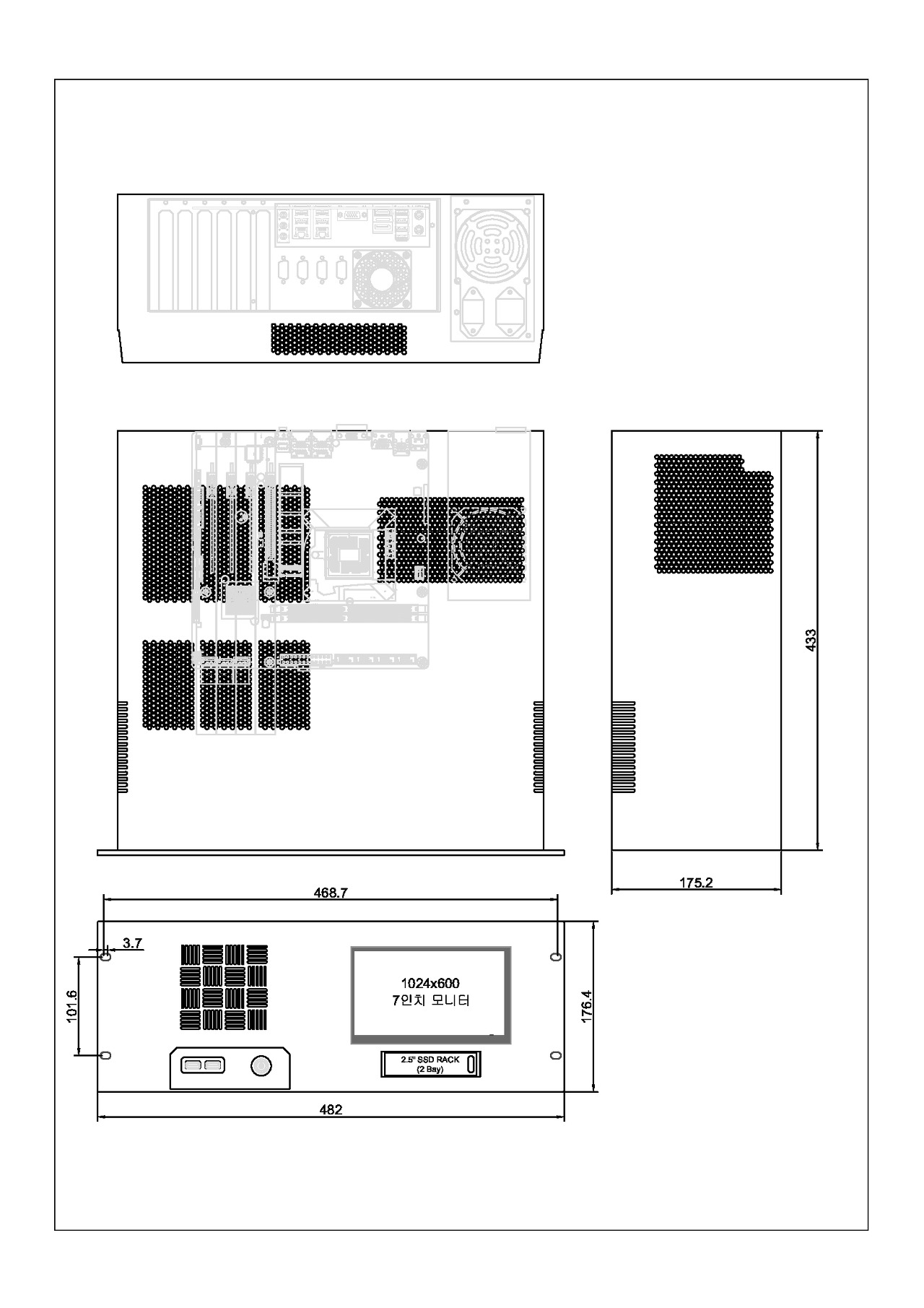
이번 서버랙은 4U로 제작하였으며, 7인치 모니터를 내장한 제품입니다.
제품의 치수는 하단의 도면을 참고바랍니다.
KC인증도 진행하였습니다. (KC인증번호 : R-R-JPW-RACK4U)
아래 제품사진을 보면서 제품에 대해 설명드리겠습니다.

RACK4U
현재 제작 된 제품의 스펙은 아래와 같습니다.
1. 제품 개요
- 제품명: RACK4U_TPN07
- 프로세서: Intel Core i5-12400
- 용도: 서버랙 , AI , 스마트팩토리 , 데이터 센터, 서버 룸, 네트워크 기술자의 홈 랙 등
2. 기술 사양
- 프로세서:
- 모델: Intel Core i5-12400
- 코어/쓰레드: 6코어 / 12쓰레드
- 메모리:
- 타입: DDR4
- 용량: 16G
- 속도: 3200MHz
- 저장장치:
- SSD: 2.5" SSD 512G * 2
- 2.5" SSD RACK (2BAY) 장착
- 그래픽스:
- 내장 GPU: Intel UHD Graphics 730
- 외장 GPU: GPU 장착가능
- 마더보드:
- JYT-D1213 : CPU 12,13세대 사용가능 (현재 제품은 I5-12400)
- PCI-E : 16배속 지원
- 운영체제: Windows 10 IOT , Windows 11 IOT

전면부
전면부 : 7인치 터치모니터 내장하여, 제품의 상태 및 소프트웨어 프로그램 상태 확인이 가능합니다.
2.5" SSD RACK : 2bay 2.5" SSD를 장착할 수 있습니다. (RAID RACK도 장착가능합니다. RAID0 ,RAID1)

후면부
후면부 : 서버보드에 맞춰 후면 IO 제작가능합니다. (보드 변경 시 , 후면 IO 부분만 새로 제작 - 탈부착 가능한 제품)
그래픽 카드 추가 장착하여, 여러 용도로 사용 가능합니다.위 보드의 경우 RS422,485,232 모두 지원됩니다.

제품 내부

2.5" SSD RACK
2.5" SSD RACK 장착 모습입니다. (RAID RACK - RAID0 ,RAOD1 가능합니다)

제품 사이즈 도면
이 외에 큰 모니터를 내장하여 (15인치, 18.5인치) 제품 설계 & 제작도 가능합니다.
1U, 2U ,3U ,4U 제품 제작 가능하며, 서버관련 문의는 아래 카카오톡플러스로 문의주시면 감사하겠습니다.
'산업용PC , 랙 > 패널 내장랙' 카테고리의 다른 글
| COM포트 16개 지원! 산업 현장을 위한 랙 마운트 패널 PC (1) | 2026.03.09 |
|---|---|
| AI용 멀티GPU 4U 서버랙! (전면 모니터와 레이드랙 장착 가능) (0) | 2026.03.09 |
| AI 시대 최적의 솔루션 : 강력한 성능과 편의성의 7인치 모니터 탑재 4U 서버 (3) | 2026.03.05 |
| 4U RACK - 7인치 모니터 내장형 _ 모니터와 RACK을 한번에 ! (1) | 2026.03.03 |
| 힌지 & 슬라이드를 이용한 1U 10인치 터치모니터 산업용PC (RACK 서버 장착 가능 제품) (0) | 2026.02.11 |







